Осмотрим помещение и определим подходящий тип системы вентиляции и кондиционирования

Осмотрим помещение и определим подходящий тип системы вентиляции и кондиционирования

Совместно с вами составим техническое задание.
Учитываем ваши пожелания по расположению оборудования.

Каждый этап проектирования контролирует главный инженер проекта.
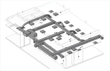
Проведем инженерную экспертизу на основе утвержденного технического задания.

На основе инженерного проекта и спецификации составляем коммерческое предложение.
В КП указываем точную стоимость оборудования и монтажных работ. Утверждаем цену и детали коммерческого предложения.

Подписываем договор на закупку оборудования и монтаж.
Вам не придётся переплачивать за технику для систем вентиляции и кондиционирования. Закупаем оборудование по цене, указанной в договоре.

Проводим пуско-наладочные работы и тестируем систему.
Обучаем сотрудников пользоваться климатической техникой. Выдаем паспорт системы вентиляции или кондиционирования.

Инженер подъедет на ваш объект, сделает бесплатные замеры и ответит на все ваши вопросы.
После мы подскажем как можно сэкономить на объекте, подберем оборудование под ваш бюджет и оперативно вышлем предложение.

Предоставляем гарантию до 5 лет на оборудование наших партнеров.
Также даём гарантию 3 года на монтаж вентиляции и кондиционеров в вашем помещении.

Монтаж оборудования сопровождается большим количеством мусора, но мы не оставляем после себя беспорядка.
Перед сдачей объекта своевременно вывозим весь строительный мусор и чистим помещение.








Скоро мы свяжемся с вами!